目黒エリアの賃貸物件情報は、いい部屋ネット目黒駅前店にお任せ下さい!

目黒駅賃貸 1DK 3駅利用可能!

目黒駅賃貸 1DK 3駅利用可能!【ドムス・スタイル武蔵小山】1DK

  • 目黒駅賃貸 1DK 3駅利用可能!【ドムス・スタイル武蔵小山】1DK
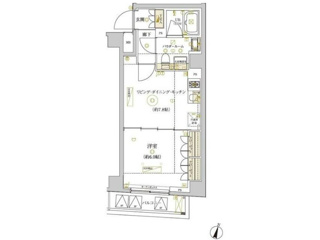
  • 間取り画像

賃料

148,000円共益費:10,000円

所在地

東京都品川区荏原4丁目18-6

アクセス

  • 東急目黒線西小山駅徒歩9分
  • 東急目黒線武蔵小山駅徒歩11分
  • 東急池上線戸越銀座駅徒歩12分

物件基本情報

物件構造 物件階層 物件種別 完成年月 現状 入居 取引態様
鉄筋コンクリート 6階建 マンション 2020年3月 居住中 媒介

物件設備

  • オートロック
  • モニター付きオートロック
  • インターネット
  • 宅配ボックス
  • 防犯カメラ
  • 都市ガス

部屋設備

  • エレベーター
  • 南向き
  • 築5年以内
  • 角部屋
  • フローリング
  • 洗面所独立
  • 照明器具
  • バルコニー
  • TVインターホン
  • オール洋室
  • 駅徒歩10分以内

周辺環境

リンガーハット 武蔵小山店 約713m、コメダ珈琲店 武蔵小山店 約538m、ドトールコーヒーショップ武蔵小山店 約697m、ドトールコーヒーショップ戸越銀座店 約1040m、マクドナルド 武蔵小山店 約710m、ミスタードーナツ 武蔵小山駅前ショップ 約836m

おすすめポイント
  • 01コンクリ
  • 02駅徒歩10分以内
  • 03セキュリティ

おすすめポイント

バストイレ別、独立洗面台や2口コンロのシステムキッチンなど快適な水回りが自慢のお部屋です。浴室乾燥機や温水洗浄便座など充実した設備がございます。洋室にはクローゼットがあり洋服もたくさん収納できます。セキュリティも完備で安心してお過ごしいただけます。

アクセス良好

西小山駅は東急目黒線が乗り入れております。目黒駅まで3駅ですので交通の便が良く、駅周辺には商店街や飲食店も充実しておりますので生活利便性も高いです。治安も非常に良いため、女性の一人暮らしやファミリーの方でも安心して暮らせる環境が整っております。

ドムス・スタイル武蔵小山の物件詳細情報はこちら

よかったらシェアしてね!
  • URLをコピーしました!

この記事を書いた人

いい部屋ネット目黒駅前店の編集メンバーが不定期で更新します。不動産界隈の最新ニュース・物件更新情報・いい部屋ネット目黒駅前店からのお知らせやお部屋探しに役立つ情報をわかりやすく紹介します!

LINE

LINEする

来店予約

来店予約する