コンシェリア目黒本町 THE RESIDENCEは、目黒区目黒本町の落ち着いた住宅街に佇む分譲タイプマンションです。東急目黒線「武蔵小山」駅や東横線「学芸大学」駅が利用可能で、都心へのアクセスと住環境の良さを兼ね備えた立地が魅力です。周辺にはスーパーやコンビニ、飲食店が点在し、日常の買い物にも便利なエリアとなっています。間取りは1Kから2LDKまで幅広く、単身者からカップル、少人数ファミリーまで多様なライフスタイルに対応。室内は機能性とデザイン性を両立した設計で、システムキッチンや独立洗面台、浴室乾燥機など快適な設備が整っています。共用部にはオートロックや宅配ボックスを備え、防犯面や利便性にも配慮。上質で安心感のある暮らしを求める方におすすめのレジデンスです。
「コンシェリア目黒本町 THE RESIDENCE」について

「コンシェリア目黒本町 THE RESIDENCE」の物件概要
| 所在地 | 東京都目黒区目黒本町4丁目 |
|---|---|
| 最寄駅 | 東急目黒線武蔵小山駅徒歩15分/JR山手線目黒駅バス16分 |
| 築年数 | 2025年9月 |
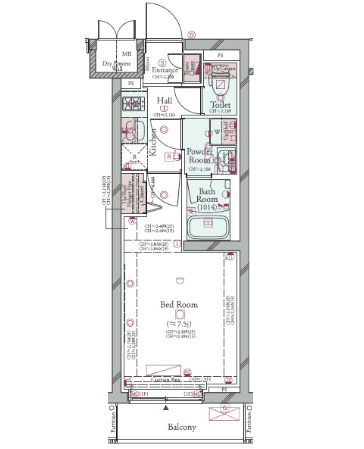
| 間取り | 1K |
| 構造 | 鉄筋コンクリート |
「コンシェリア目黒本町 THE RESIDENCE」の室内詳細
間取り

水道(公営) / ガス(都市) / 排水(下水) / バス専用共同(専用) / トイレ専用共同(専用) / バス・トイレ別 / コンロ種別(ガス) / コンロ口数(2口) / システムキッチン / 洗濯機 / エアコン / 室内洗濯機置き場 / BSアンテナ / オートロック / エレベータ / バルコニー / フローリング / 宅配ボックス / 駐輪場 / internet対応(その他インターネット) / TVドアホン / 温水洗浄便座 / 浴室乾燥機 / 独立洗面台 / 防犯カメラ / インターネット利用料無料 / カード決済(初期費用) / クローゼット / シューズボックス / ペット相談/ 敷地内ゴミ置き場
※設備をクリック頂くと設備で条件を絞ることが可能です
洋室

食事とリビングの中間的な空間として設計されており、シンプルながらも実用性を重視したレイアウトが魅力です。フローリング仕上げで統一感があり、お掃除がしやすく清潔感を保ちやすい仕様です。
システムキッチン

システムキッチンは2口ガスコンロ対応で料理しやすく、作業スペースも確保されています。
バスルーム

清潔感と快適性を重視した上質な空間です。広めのバスタブには追い焚き機能が備わっており、ゆったりお湯につかりながら、一日の疲れを癒せます。洗い場は足を伸ばして使いやすく、浴室乾燥機が付いているため、梅雨時や花粉シーズンでも安心。換気・乾燥・暖房・涼風機能を兼ね備えており、いつでも快適な入浴環境を保てます。壁や床には抗菌・防カビ仕様のパネルが使用されており、お掃除も簡単。洗面台や鏡もモダンなデザインで統一されていて、毎日の身だしなみをスタイリッシュにサポート。シンプルながら機能充実、日々のリラックスタイムを高めるバスルームです。
独立洗面台

使い勝手とデザイン性を兼ね備えた機能的な空間です。洗面ボウルは広めの設計で水ハネしにくく、鏡まわりには収納棚や鏡裏収納が設けられており、化粧品や歯ブラシなどをすっきり整理できます。シンプルで清潔感のあるホワイトやグレーのカラーリングは、トイレやバスルームとの統一感を高め、朝の支度をスタイリッシュに演出します。また、洗面台下のキャビネットは掃除用具やタオルの収納にも便利で、生活感を抑えたスマートな空間が実現。照明は顔色を自然に映し出すタイプを採用し、身だしなみチェックも安心です。さらに水栓は湯温調整しやすい仕様で、快適な日常使いに配慮されています。
トイレ

ウォシュレット一体型便座を標準装備し、温水洗浄や脱臭機能、暖房便座などの便利な機能を備えています。便器周りは撥水・抗菌加工の便器と床材を採用しており、清掃がしやすく衛生的です。シンプルな白を基調とした内装に、間接照明を取り入れたやわらかな光が落ち着いた雰囲気を演出。また、トイレットペーパーや掃除用品を収納できる収納棚も設置されており、すっきりとした空間を保ちやすい工夫がなされています。単身入居者はもちろん、カップルやファミリーにも安心して使える快適なトイレ空間です。
セキュリティ

住まう方の安心を第一に考えた充実設計です。エントランスにはオートロックを採用し、来訪者はインターホンとカメラで事前確認が可能です。エレベーターは居住階専用操作のため、不審者の侵入を防ぎます。建物内には24時間稼働の防犯カメラが複数設置され、共用部の見守りが徹底されています。また、各住戸の玄関ドアにはダブルロックとドアスコープ付きで、防犯性能をさらに強化。さらに、防災対応として、非常用照明や火災報知器も各所に配置されており、万一の際にも住民の安全を守ります。
「コンシェリア目黒本町 THE RESIDENCE」のおすすめポイント
お部屋探しでお困りの方へ
リブリッチ目黒駅前店は目黒駅から徒歩1分の駅前に店舗を構え、目黒駅周辺の賃貸マンション・賃貸アパート、売買物件など不動産全般のご紹介をおこなっております。
目黒周辺へお引越しを検討されている単身の方やカップル、新婚さん、ファミリーなど様々なニーズに合わせて常にお客様目線での接客を心がけ、お客様に最適なお部屋をご紹介いたします。
「賃貸・売買で契約の事がわからない」「遠方で来店ができない」「初期費用を抑えたい」等のお悩みはお気軽にご相談ください。