目黒エリアの賃貸物件情報は、いい部屋ネット目黒駅前店にお任せ下さい!

戸越駅賃貸1RのKDXレジデンス戸越の物件紹介

戸越駅賃貸1RのKDXレジデンス戸越の物件紹介

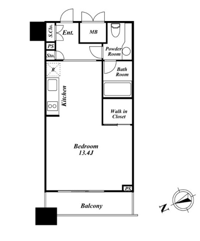
  • 間取り画像

賃料

137,000円共益費:8,000円

所在地

東京都品川区戸越5-1-1

アクセス

  • 都営浅草線戸越駅徒歩4分
  • 東急大井町線戸越公園駅徒歩7分

物件基本情報

物件構造 物件階層 物件種別 完成年月 現状 入居 取引態様
鉄筋コンクリート造 14階建 マンション 2006年11月 空室 媒介

物件設備

  • オートロック
  • シアタールーム
  • インターネット
  • 宅配ボックス
  • 防犯カメラ
  • フィットネスルーム

部屋設備

  • 浴室乾燥機
  • 温水洗浄便座
  • ウォークインクローゼット
  • 追炊機能
  • オートバス
  • 2口コンロ
  • 24時間換気システム
  • バルコニー
  • TVインターホン
  • オール洋室
  • 洗面台独立

周辺環境

ファミリーマート 品川平塚一丁目店 約179m、 オーケーストア 戸越店 約249m、 ローソン L_戸越四丁目 約214m、三菱東京UFJ銀行 荏原支店 約531m、まいばすけっと戸越公園店 約482m、山手歯科クリニック 戸越公園 約437m

おすすめポイント
  • 01セキュリティ
  • 02広々ワンルーム
  • 03フィットネスルーム

おすすめポイント

礼金不要で初期費用抑えられます。共用部には宅配ボックスが備え付けられているため、対面で荷物を受け取る必要が無くなります。収納はシューズボックス・ウォークインクロゼットなどが備え付けられているので、衣類や日用品の収納に重宝します。シアタールーム・フィットネスルームもある大型賃貸マンションです。浴室乾燥機・追炊機能・温水洗浄便座など室内設備も充実しております。13.4畳もある広々としたお部屋で広めのお部屋をお探しの方にオススメです。オートロックや防犯カメラなどセキュリティも完備しており、女性の方でも安心してご入居頂けます。

抜群のアクセス

戸越駅はお浅草線・大井町線が乗り入れております。田町や新橋まで乗り換えなしでアクセスできるため、非常に利便性の高いエリアになっております。戸越銀座商店街が近く食料品・グルメ・美容など多様な店が並ぶ商店街があります。治安も非常に良いため、女性の一人暮らしやファミリーの方でも安心して暮らせる環境が整っております。

よかったらシェアしてね!
  • URLをコピーしました!

この記事を書いた人

いい部屋ネット目黒駅前店の編集メンバーが不定期で更新します。不動産界隈の最新ニュース・物件更新情報・いい部屋ネット目黒駅前店からのお知らせやお部屋探しに役立つ情報をわかりやすく紹介します!

LINE

LINEする

来店予約

来店予約する