ザ・パークハビオ目黒は、スタイリッシュな都市生活を叶える高品質賃貸レジデンスです。目黒駅から徒歩圏内に位置し、都心主要エリアへのアクセスが良好でありながら、閑静な住宅街の落ち着いた雰囲気も併せ持つ魅力的な立地です。外観は洗練されたデザインで、エントランスや共用部には上質な素材を使用し、ホテルライクな空間を演出しています。住戸は1Rから2LDKまで多彩なプランを揃え、シングルからカップルまで幅広いライフスタイルに対応。室内は白と木目を基調とした上品な内装で、システムキッチンや浴室乾燥機、独立洗面台など最新の設備を完備しています。また、オートロックや防犯カメラ、宅配ボックスなどセキュリティ面も充実。さらにペット飼育相談可やSOHO利用可能など、柔軟な住まい方をサポートする点も魅力です。
「ザ・パークハビオ目黒」について

「ザ・パークハビオ目黒」の物件概要
| 所在地 | 東京都目黒区下目黒3丁目 |
|---|---|
| 最寄駅 | JR山手線目黒駅徒歩10分/東急目黒線目黒駅徒歩10分 |
| 築年数 | 2017年5月 |
| 間取り | 1R |
| 構造 | 鉄筋コンクリート |
「ザ・パークハビオ目黒」の室内詳細
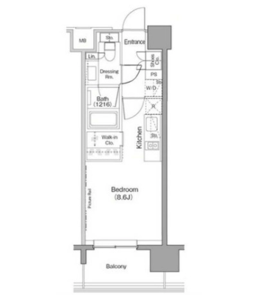
間取り

水道(公営) / ガス(都市) / 排水(下水) / バス専用共同(専用) / トイレ専用共同(専用) / バス・トイレ別 / コンロ種別(ガス) / コンロ口数(2口) / システムキッチン / エアコン / 室内洗濯機置き場 / オートロック / エレベータ / バルコニー / フローリング / 宅配ボックス / 駐輪場 / internet対応(その他インターネット) / TVドアホン / 温水洗浄便座 / ごみ出し24時間OK / 防犯カメラ / カード決済(初期費用) / クローゼット / シューズボックス / ペット相談/ 敷地内ゴミ置き場
※設備をクリック頂くと設備で条件を絞ることが可能です
洋室

コンパクトながらも使い勝手が良く、一人暮らしや1K・1Rの間取りにちょうど良い広さである点です。ベッド・テレビ・デスクなど基本的な家具を無理なく配置でき、空間にゆとりが生まれます。また、フローリング仕上げは掃除がしやすく、ダニやホコリが溜まりにくいため、アレルギー対策にも適しています。木目調のデザインが多く、インテリアとの相性も良いため、ナチュラルで落ち着いた空間を演出できます。6.5帖という広さは、狭すぎず広すぎず、冷暖房効率も良好で、居心地の良い室内環境を保ちやすいのも大きな魅力です。
システムキッチン

2口システムキッチンは、コンパクトながら実用性が高く、自炊をしっかり楽しみたい方にとって非常に便利な設備です。1口コンロに比べて、同時に複数の調理ができるため、料理の効率が格段にアップします。例えば、片方でおかずを炒めながら、もう片方でご飯やスープを温めるといった使い方が可能です。た、システムキッチンとして調理スペースや収納も一体化されており、見た目がすっきりしていて掃除もしやすいのが特長です。単身向けながらも本格的な調理に対応できるため、外食に頼らず健康的な食生活を送りたい人にとって、暮らしの満足度を高めてくれるポイントになります。
バスルーム

限られたスペースを効率的に使え、日々の生活がスムーズになる点です。特にワンルームや1Kなどの単身向け物件では、コンパクトながら機能的で、シンプルに暮らしたい方にぴったりな設備です。
玄関

オートロック・防犯カメラ完備のほか、各住戸にはテレビドアホンがあり、外部からの侵入を防ぐ体制が整っています。エレベーターも鍵付で、居住者以外のアクセスを制限しています。
トイレ

トイレは、温水洗浄便座の機能がついているため、いつでも快適に、清潔に保つことができます。温水洗浄便座が標準装備されています。これにより、寒い季節でも快適に使用できるほか、清潔感を保つことができます。トイレ上やサイドに収納もあります。
収納

収納は、洋室に設置してあるためコーディネートもしやすい位置にあります。クローゼットの中は上段とハンガーラックの付いた下段に分かれており、お洋服が多い方でもすっきりと収納可能です。全体が見渡せて取り出しやすい仕様になっています。
「ザ・パークハビオ目黒」のおすすめポイント
お部屋探しでお困りの方へ
リブリッチ目黒駅前店は目黒駅から徒歩1分の駅前に店舗を構え、目黒駅周辺の賃貸マンション・賃貸アパート、売買物件など不動産全般のご紹介をおこなっております。
目黒周辺へお引越しを検討されている単身の方やカップル、新婚さん、ファミリーなど様々なニーズに合わせて常にお客様目線での接客を心がけ、お客様に最適なお部屋をご紹介いたします。
「賃貸・売買で契約の事がわからない」「遠方で来店ができない」「初期費用を抑えたい」等のお悩みはお気軽にご相談ください。