東京都目黒区五本木に位置する「BPRレジデンス祐天寺」は、2007年9月に竣工した地上3階・地下1階建てのデザイナーズマンションです。東急東横線「祐天寺」駅から徒歩4分という好立地で、中目黒や渋谷へのアクセスも良好。都心の利便性と落ち着いた住環境を両立しています。間取りは1Rから1LDKまで多様で、専有面積は23㎡台から58㎡台と幅広いニーズに対応。天井高3.7mの開放感ある居室もあり、デザイン性と快適性を兼ね備えています。オートロック、モニター付きインターホン、宅配ボックス、24時間ゴミ出し可能なゴミ置き場など、セキュリティと利便性を重視した設備も充実。周辺にはスーパーやコンビニ、公園など生活施設が整い、静かで落ち着いた環境の中に快適な都市生活を実現できる魅力的な物件です。
「BPRレジデンス祐天寺」について

「BPRレジデンス祐天寺」の物件概要
| 所在地 | 東京都目黒区五本木2丁目 |
|---|---|
| 最寄駅 | JR山手線目黒駅バス20分/東急東横祐天寺駅徒歩4分 |
| 築年数 | 2006年2月 |
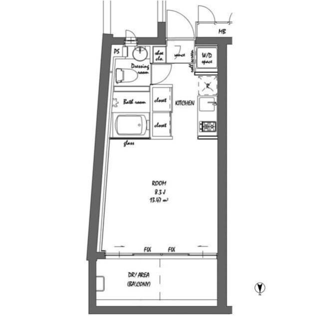
| 間取り | 1R |
| 構造 | 鉄筋コンクリート |
「BPRレジデンス祐天寺」の室内詳細
間取り

水道(公営) / ガス(都市) / 排水(下水) / バス専用共同(専用) / トイレ専用共同(専用) / バス・トイレ別 / コンロ種別(ガス) / コンロ口数(2口) / システムキッチン / エアコン / 室内洗濯機置き場 / オートロック / エレベータ / バルコニー / フローリング / 宅配ボックス / 駐輪場 / internet対応(その他インターネット) / TVドアホン / 温水洗浄便座 / 浴室乾燥機 / 独立洗面台 / 防犯カメラ / カード決済(初期費用) / クローゼット / シューズボックス / ペット不可 / 敷地内ゴミ置き場
※設備をクリック頂くと設備で条件を絞ることが可能です
洋室

天井が高めに設計されているため、実際の面積以上に広く感じられます。床にはフローリングが敷かれており、ナチュラルな色合いと木目調の質感が、全体的に落ち着いた印象を与えてくれます。
ソファとローテーブル、テレビボードを置いてもゆとりがあるサイズ感です。窓は大きめに取られており、日中は自然光がしっかりと入り込みます。
システムキッチン

壁付けまたは対面式のスタイルになっており、空間を圧迫せず、生活動線がとてもスムーズです。グリル付きで収納力のあるシステムキッチンが採用されており、料理を日常的に楽しみたい方にとっても十分な機能が備わっています。
バスルーム

壁面には落ち着いたトーンのパネルが使われていて、白やグレー、ウッド調の色合いが基調になっています。そのため、視覚的にも圧迫感が少なく、ホテルライクな印象を受けます。バスタブはゆったりとしたサイズで、足を伸ばして浸かれる深さと広さが確保されており、一日の疲れをしっかりと癒すことができます。
独立洗面台

洗面台はバスルームとは別のスペースに設置されており、朝の忙しい時間帯でもスムーズに身支度ができるよう配慮されています。洗面ボウルは陶器製で清潔感があり、広めのカウンターがあるため、歯ブラシや化粧品などの小物を置くスペースに困ることはありません。
鏡は大きく、明るい照明が上下や左右に配置されているため、顔全体を均一に照らしてくれます。メイクや髭剃りなどの細かい作業もはかどります。
トイレ

トイレは、温水洗浄便座の機能がついているため、いつでも快適に、清潔に保つことができます。トイレ上に収納もあるため、収納には困りません。
収納

居住空間の使いやすさを最大限に考慮した設計がされています。限られた空間でも生活感を感じさせず、すっきりとした暮らしができるよう工夫がなされているのが特徴です。
「BPRレジデンス祐天寺」のおすすめポイント
お部屋探しでお困りの方へ
リブリッチ目黒駅前店は目黒駅から徒歩1分の駅前に店舗を構え、目黒駅周辺の賃貸マンション・賃貸アパート、売買物件など不動産全般のご紹介をおこなっております。
目黒周辺へお引越しを検討されている単身の方やカップル、新婚さん、ファミリーなど様々なニーズに合わせて常にお客様目線での接客を心がけ、お客様に最適なお部屋をご紹介いたします。
「賃貸・売買で契約の事がわからない」「遠方で来店ができない」「初期費用を抑えたい」等のお悩みはお気軽にご相談ください。