「ザ・パークハビオSOHO祐天寺」は、 東急東横線「祐天寺」駅から徒歩わずか4分という抜群の立地に佇むデザイナーズレジデンスです。周辺にはおしゃれなカフェや雑貨店が点在し、落ち着いた下町の雰囲気を楽しみながらも都心へのアクセスが良好。自由なワークスタイルを実現するSOHO利用可能な住空間は、住まいとオフィスの両立を叶えたいクリエイターや起業家に最適です。建物外観はモダンで洗練されたデザインを採用し、バルコニー付きの住戸もあり、気分転換にご自宅で外気を感じることができます。室内は高い天井と広めの窓を配し、自然光がたっぷり差し込む開放的な空間。クローゼットやシューズインなど収納もしっかり確保しています。また、セキュリティ面も安心のオートロック・宅配ボックス完備で、共用部は清潔に保たれています。SOHO利用に適したインターネット環境と、生活利便性を高める家電・設備も充実。「自宅兼仕事場」としてだけでなく、「趣味を本格的に楽しむ空間」としてのポテンシャルも秘めています。立地・デザイン・機能性のバランスが取れた、これからの都心ライフをスマートに楽しみたい方にぴったりの一邸です。
「ザ・パークハビオSOHO祐天寺」について

「ザ・パークハビオSOHO祐天寺」の物件概要
| 所在地 | 東京都目黒区区祐天寺2丁目 |
|---|---|
| 最寄駅 | JR山手線目黒駅バス20分/東急東横祐天寺駅徒歩2分 |
| 築年数 | 2023年5月 |
| 間取り | 3LDK |
| 構造 | 鉄筋コンクリート |
「ザ・パークハビオSOHO祐天寺」の室内詳細
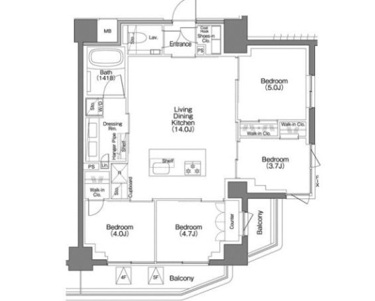
間取り

水道(公営) / ガス(都市) / 排水(下水) / バス専用共同(専用) / トイレ専用共同(専用) / バス・トイレ別 / コンロ種別(ガス) / コンロ口数(2口) / システムキッチン / エアコン / 室内洗濯機置き場 / オートロック / エレベータ / バルコニー / フローリング / 宅配ボックス / 駐輪場 / internet対応(その他インターネット) / TVドアホン / 温水洗浄便座 / 浴室乾燥機 / 独立洗面台 / 防犯カメラ / カード決済(初期費用) / クローゼット / シューズボックス / ペット不可 / 敷地内ゴミ置き場
※設備をクリック頂くと設備で条件を絞ることが可能です
LDK

天井が高めに設計されているため、実際の面積以上に広く感じられます。床にはフローリングが敷かれており、ナチュラルな色合いと木目調の質感が、全体的に落ち着いた印象を与えてくれます。
ソファとローテーブル、テレビボードを置いてもゆとりがあるサイズ感です。窓は大きめに取られており、日中は自然光がしっかりと入り込みます。
システムキッチン

IHクッキングヒーターやグリル、収納力のあるシステムキッチンが採用されており、料理を日常的に楽しみたい方にとっても十分な機能が備わっています。
バスルーム

壁面には落ち着いたトーンのパネルが使われていて、白やグレー、ウッド調の色合いが基調になっています。そのため、視覚的にも圧迫感が少なく、ホテルライクな印象を受けます。バスタブはゆったりとしたサイズで、足を伸ばして浸かれる深さと広さが確保されており、一日の疲れをしっかりと癒すことができます。
独立洗面台

洗面台はバスルームとは別のスペースに設置されており、朝の忙しい時間帯でもスムーズに身支度ができるよう配慮されています。洗面ボウルは陶器製で清潔感があり、広めのカウンターがあるため、歯ブラシや化粧品などの小物を置くスペースに困ることはありません。
鏡は大きく、明るい照明が上下や左右に配置されているため、顔全体を均一に照らしてくれます。メイクや髭剃りなどの細かい作業もはかどります。
トイレ

トイレは、温水洗浄便座の機能がついているため、いつでも快適に、清潔に保つことができます。トイレ上に収納もあるため、収納には困りません。
収納

居住空間の使いやすさを最大限に考慮した設計がされています。限られた空間でも生活感を感じさせず、すっきりとした暮らしができるよう工夫がなされているのが特徴です。
「ザ・パークハビオSOHO祐天寺」のおすすめポイント
お部屋探しでお困りの方へ
リブリッチ目黒駅前店は目黒駅から徒歩1分の駅前に店舗を構え、目黒駅周辺の賃貸マンション・賃貸アパート、売買物件など不動産全般のご紹介をおこなっております。
目黒周辺へお引越しを検討されている単身の方やカップル、新婚さん、ファミリーなど様々なニーズに合わせて常にお客様目線での接客を心がけ、お客様に最適なお部屋をご紹介いたします。
「賃貸・売買で契約の事がわからない」「遠方で来店ができない」「初期費用を抑えたい」等のお悩みはお気軽にご相談ください。