ザ・パークハビオ五反田は、五反田駅からほど近く、快適な都市生活を叶える高級賃貸レジデンスです。スタイリッシュで洗練された外観とホテルライクな共用部が特徴で、エントランスやロビーは上質で落ち着いた雰囲気を演出しています。住戸は1R〜2LDKまで多彩なプランが用意され、シングルからディンクスまで幅広いライフスタイルに対応。室内はシンプルかつ機能的な設計で、充実した収納や高品質な設備が整い、日々の暮らしを快適にサポートします。さらに、オートロックや防犯カメラなどセキュリティ面も充実しており、都心に住むうえで安心感のある環境が整っています。周辺には飲食店、スーパー、商業施設が点在し、生活利便性も抜群。交通・住環境・設備がバランスよく揃った、都会型ライフを求める方にぴったりの物件です。
「ザ・パークハビオ五反田 」について

「ザ・パークハビオ五反田 」の物件概要
| 所在地 | 東京都品川区西五反田2丁目 |
|---|---|
| 最寄駅 | JR山手線五反田駅徒歩2分/JR山手線目黒駅徒歩11分 |
| 築年数 | 2022年11月 |
| 間取り | 1LDK |
| 構造 | 鉄筋コンクリート |
「ザ・パークハビオ五反田 」の室内詳細
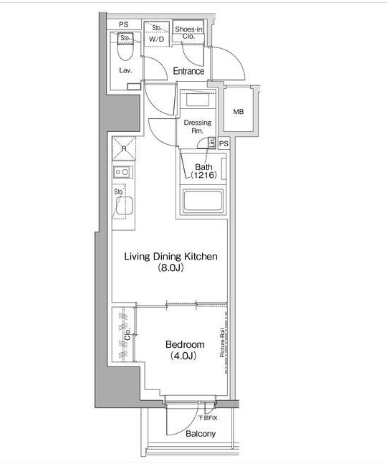
間取り

水道(公営) / ガス(都市) / 排水(下水) / バス専用共同(専用) / トイレ専用共同(専用) / バス・トイレ別 / コンロ種別(ガス) / コンロ口数(2口) / システムキッチン / 追い焚き / エアコン / 室内洗濯機置き場 / BSアンテナ / オートロック / エレベータ / バルコニー / フローリング / 宅配ボックス / 駐輪場 / internet対応(その他インターネット) / TVドアホン / 温水洗浄便座 / 浴室乾燥機 / ごみ出し24時間OK / 独立洗面台 / 防犯カメラ / インターネット利用料無料 / カード決済(初期費用) / クローゼット / シューズボックス / ペット相談 / 敷地内ゴミ置き場 / トランクルーム
※設備をクリック頂くと設備で条件を絞ることが可能です
LDK

広々とした空間設計で、ゆったりとした時間を過ごせる心地よいリビングです。大きな窓からは自然光がたっぷり差し込み、明るく開放的な雰囲気が広がります。フローリングは落ち着いた色味で、どんな家具とも調和しやすく、インテリアの自由度も高いのが魅力です。キッチンは使いやすい動線を意識した配置で、料理中もリビングにいる家族や来客との会話を楽しめる対面式。日々の暮らしを快適にサポートしてくれる空間です。
キッチン

2口タイプで、同時に複数の調理が可能なので時短にもなり、自炊派にも対応できるスペックです。キッチン自体もシステムキッチン仕様で、シンク・収納・作業スペースがバランスよく設計されており、料理しやすい環境が整っています。
バスルーム

清潔感あふれるデザインで、日々の疲れを癒す快適な空間となっています。ゆったりとした浴槽は足を伸ばして入浴できるサイズ感で、リラックスタイムに最適。壁や床には落ち着いた色合いの素材を使用し、上質な雰囲気を演出しています。浴室乾燥機も備えており、雨の日や花粉の季節でも洗濯物を快適に乾かすことが可能です。機能性とデザイン性を兼ね備えた、毎日使うのが楽しみになるバスルームです。
独立洗面台

機能性とデザイン性を兼ね備えた使い勝手の良い設備です。大きめの鏡と明るい照明により、朝の身支度も快適に行えます。収納スペースも充実しており、スキンケア用品やドライヤーなどの小物もすっきりと整理可能。洗面ボウルは広めに設計されており、水はねもしにくく、毎日の使用がストレスなく行えます。清潔感のあるデザインで、忙しい日々の中でも快適な時間を提供してくれる洗面スペースです。
トイレ

シンプルながらも清潔感のある快適な空間に仕上がっています。温水洗浄便座を標準装備しており、季節を問わず快適に使用できます。スペースには余裕があり、圧迫感がないため、リラックスして利用できるのも魅力のひとつです。また、壁面にはちょっとした収納棚も備え付けられており、トイレットペーパーや掃除道具などをすっきりと収納可能。日々の生活を支える、実用性と清潔感を兼ね備えたトイレです。
収納

奥行きと幅がしっかりと確保されており、衣類はもちろん、季節家電やスーツケースなどのかさばる荷物もすっきり収納できます。ハンガーパイプ付きで洋服の管理がしやすく、棚板もあるため小物やバッグの整理にも便利です。居室空間を広く使えるだけでなく、生活感を隠してすっきりとした室内を保てる、実用性の高い収納スペースです。
「ザ・パークハビオ五反田 」のおすすめポイント
お部屋探しでお困りの方へ
リブリッチ目黒駅前店は目黒駅から徒歩1分の駅前に店舗を構え、目黒駅周辺の賃貸マンション・賃貸アパート、売買物件など不動産全般のご紹介をおこなっております。
目黒周辺へお引越しを検討されている単身の方やカップル、新婚さん、ファミリーなど様々なニーズに合わせて常にお客様目線での接客を心がけ、お客様に最適なお部屋をご紹介いたします。
「賃貸・売買で契約の事がわからない」「遠方で来店ができない」「初期費用を抑えたい」等のお悩みはお気軽にご相談ください。