プレミアムキューブ広尾は、東京メトロ日比谷線「広尾」駅から徒歩約9分、恵比寿・白金台も徒歩圏内の好立地にあるデザイナーズ分譲賃貸マンションです。周辺は人気のショップやレストランが多く、日常の利便性が高い環境です。建物は2013年築の鉄筋コンクリート造でオートロック・宅配ボックス・エレベーター・防犯カメラなど設備が充実しており安心・快適な暮らしを提供します。室内は1Kのコンパクトプランで、システムキッチン・浴室乾燥機・エアコン・TVインターホン等の基本設備が整っており、効率的で過ごしやすい住空間です。さらにペット相談可でペットと一緒の生活も可能な点も魅力です。
「プレミアムキューブ広尾」について

「プレミアムキューブ広尾」の物件概要
| 所在地 | 東京都渋谷区恵比寿2丁目 |
|---|---|
| 最寄駅 | 日比谷線広尾駅徒歩9分/東急目黒バス目黒駅20分 |
| 築年数 | 2023年11月 |
| 間取り | 1K |
| 構造 | 鉄筋コンクリート造 |
「プレミアムキューブ広尾」の室内詳細
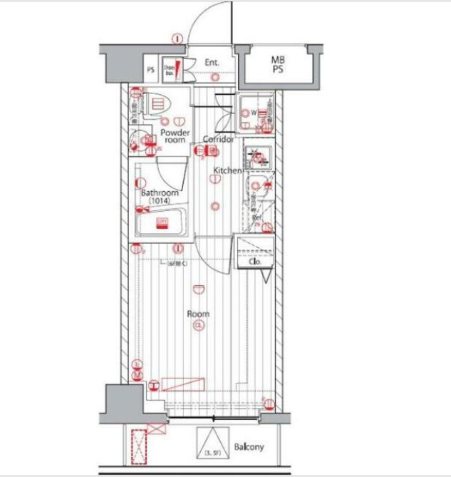
間取り

水道(公営) / ガス(都市) / 排水(下水) / バス専用共同(専用) / トイレ専用共同(専用) / バス・トイレ別 / コンロ種別(ガス) / コンロ口数(2口) / システムキッチン /エアコン / 室内洗濯機置き場 / バルコニー / 宅配ボックス / 駐輪場 / internet対応(インターネット無料) / TVドアホン / 温水洗浄便座 / 浴室乾燥機 / カード決済(初期費用) / 収納 / シューズボックス / ペット不可 / 敷地内ゴミ置き場/エレベーター
※設備をクリック頂くと設備で条件を絞ることが可能です
洋室

1Kタイプにある洋室は、約6帖あり、単身者にとってゆとりある空間です。フローリング仕様で、白を基調とした内装が明るく開放的な印象を与えます。大きな窓からは自然光がたっぷり入り、通風性も良好です。
システムキッチン

2口システムキッチンは、一人暮らしやコンパクトな住まいにおいて、使いやすさと機能性を両立したキッチン設備として人気があります。また、システムキッチンは見た目もスマートで、インテリア性が高い点も魅力。キッチン全体がフラットで統一感のあるデザインになっており、生活感を抑えながら清潔でスタイリッシュな空間を保つことができます。
バスルーム

清潔感のあるシンプルなデザインで、使いやすさと機能性を兼ね備えています。浴室には浴室乾燥機が付いており、寒い季節の入浴や雨の日の洗濯にも便利です。浴槽のサイズも一人暮らしには十分で、ゆったりとしたバスタイムを楽しめます。毎日のリラックスタイムに最適な空間です。
独立洗面台

使い勝手の良い独立洗面台が設けられており、忙しい朝の身支度にも便利です。洗面台は清潔感のあるホワイトを基調とし、大きなミラーと収納スペースが付属。歯ブラシやスキンケア用品などを整理しやすく、洗面まわりをスッキリ保てます。
収納

奥行のあるクローゼットがあり、たくさんのお洋服やお荷物が収納できるため、荷物を綺麗にまとめることが出来ます。
「プレミアムキューブ広尾」のおすすめポイント
お部屋探しでお困りの方へ
リブリッチ目黒駅前店は目黒駅から徒歩1分の駅前に店舗を構え、目黒駅周辺の賃貸マンション・賃貸アパート、売買物件など不動産全般のご紹介をおこなっております。
目黒周辺へお引越しを検討されている単身の方やカップル、新婚さん、ファミリーなど様々なニーズに合わせて常にお客様目線での接客を心がけ、お客様に最適なお部屋をご紹介いたします。
「賃貸・売買で契約の事がわからない」「遠方で来店ができない」「初期費用を抑えたい」等のお悩みはお気軽にご相談ください。